




Pièces
3 pièces
Chambres
2 chambres
Salles de bain
1
Surface
66 m²
Étage
3
Balcon
Oui
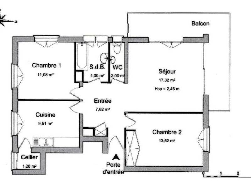
Rare à la location ! - 15 AVENUE MARC FRANCINA, centre ville d'EVIAN, à 10 minutes à pied de l'embarcadère et de la gare CEVA, charmant appartement T3 de 66,33 m2, en triple exposition, au 3ème étage (avec ascenseur) comprenant : Cuisine aménagée et séparée (meubles et hotte) avec coin cellier, séjour séparé avec accès balcon en angle et couvert (vue partielle lac, exposition sud-ouest-nord), 2 chambres (dont une avec placard), wc et salle de bain séparée. Cave et garage inclus dans la location ! Production d'eau chaude et chauffage inclus dans les charges ! Disponibilité : 15 février 2026. Contact : agence Barnoud Evian. Loyer de 1 211,49 euros par mois charges comprises dont 300,00 euros par mois de provision pour charges (soumis à la régularisation annuelle). Les honoraires charge locataire sont de 870,25 euros ( soit 13,12 euros/m² ) dont 200,98 euros pour état des lieux ( soit 3,03 euros/m² ). DPE ANCIENNE VERSION. Montant estimé des dépenses annuelles d'énergie pour un usage standard : 872 euros. Prix moyens des énergies indexés en 2015.
Source
Logicimmo
Publié le
6 février 2026
Vue pour la dernière fois
il y a 3 jours