




Pièces
4 pièces
Chambres
3 chambres
Salles de bain
1
Surface
96 m²
Terrasse
Oui
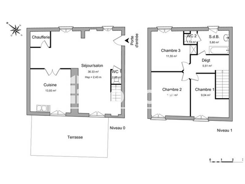
A louer 83 Chemin du Bry, situé dans un environnement calme et verdoyant. Très belle maison mitoyenne T4 en duplex, niché au sein d?un corps de ferme, offre un cadre de vie agréable et paisible. Le rez-de-chaussée accueille une cuisine fonctionnelle ainsi qu?un séjour lumineux, ouvert sur une terrasse, idéale pour profiter des beaux jours. À l?étage, l?espace nuit se compose de trois chambres confortables, desservies par un hall, ainsi qu?une salle de bains avec WC. L?ensemble est complété par un jardin et des places de stationnement, apportant un réel confort au quotidien. Disponible le 14/04 Assurance Multirisques Privilège *: 27.85 euros / mois *Services facultatifs, voir conditions en agences Les informations sur les risques auxquels ce bien est exposé sont disponibles sur le site Géorisques : georisques. gouv. fr
Source
Logicimmo
Publié le
6 février 2026
Vue pour la dernière fois
il y a 2 jours