




Pièces
3 pièces
Chambres
2 chambres
Salles de bain
1
Surface
67 m²
Étage
3
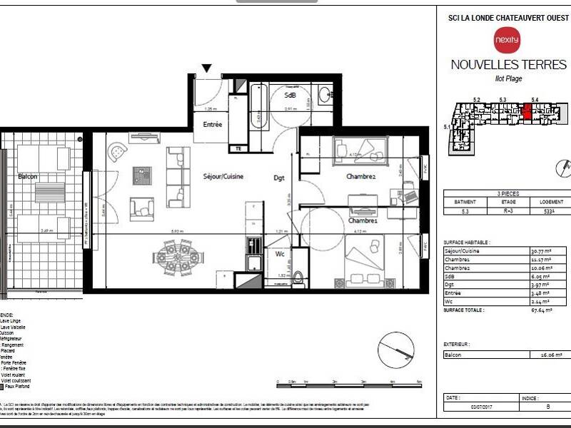
La Londe, à proximité du centre ville, dans une résidence récente avec piscine Appartement T3 Traversant au 03ème étage avec ascenseur d'une surface de 67.35m² comprenant une entrée, une séjour cuisine aménagée et équipée ( plaque four et hotte ) de 34.16m² ouvert sur une terrasse Exposée Sud de 15.51m²,une salle de bains, un wc indépendant et 2 chambres (11.10m²et 10.02m² avec placard) Loué avec un stationnement privatif. Disponble le 01/04/2026 Dispositif PINEL Loyer mensuel : 928€ Provision mensuelle de charges: 100€ ( incluant eau froide et eau chaude) Dépôt de garantie : 928€ Honoraires de visite, de constitution du dossier du locataire et de rédaction du bail : 8€ TTC/m² soit 538.79€ ttc+ honoraires de réalisation de l'état des lieux d'entrée : 3 € TTC/m² soit 202.04€ ttc
Source
Logicimmo
Publié le
6 février 2026
Vue pour la dernière fois
il y a 4 jours