




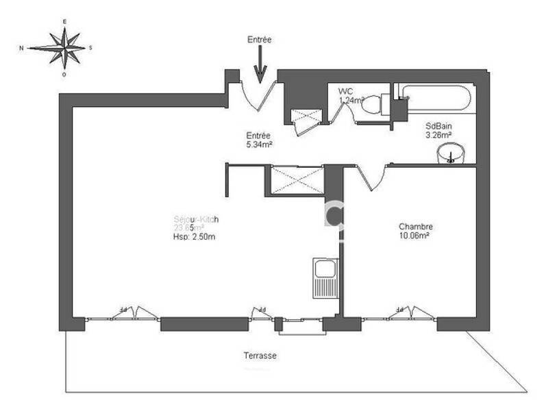
Pièces
2 pièces
Chambres
1 chambre
Surface
44 m²
Étage
3
Terrasse
Oui
Bas Faron, 189 chemin de la providence, appartement 2 pièces au 3ème étage sans ascenseur.ses atouts : Secteur très calme, immeuble sécurisé avec parking collectif, appartement lumineux avec terrasse, vue dégagée, double vitrage, climatisation, cuisine aménagée (plaque de cuisson, four, hotte aspirante). Assurance Multirisques Privilège *: 13.16 euros / mois *Services facultatifs, voir conditions en agences Les informations sur les risques auxquels ce bien est exposé sont disponibles sur le site Géorisques : georisques. gouv. fr
Source
Logicimmo
Publié le
7 février 2026
Vue pour la dernière fois
il y a 3 heures