




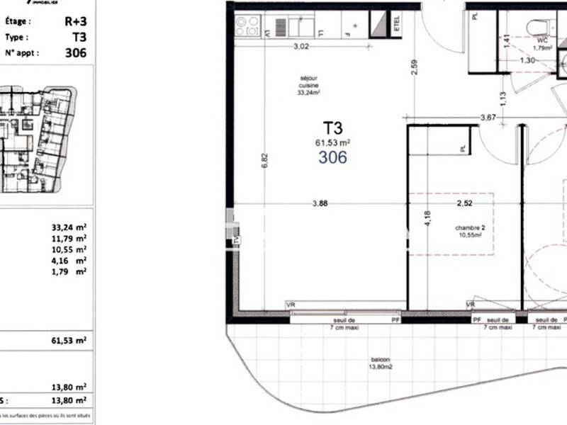
Pièces
3 pièces
Chambres
2 chambres
Surface
62 m²
Étage
3
Terrasse
Oui
Balcon
Oui
Agde, secteur Intermaché dans une résidence neuve, venez découvrir ce superbe appartement T3, situé au dernier étage, offrant confort, modernité et luminosité.Il se compose d?un séjour spacieux et lumineux avec cuisine ouverte, donnant accès à une magnifique terrasse de 14 m². L?espace nuit propose deux chambres confortables, une salle d'eau équipé d'un sèche serviette et wc séparé.Vous bénéficierez également d?un parking privatif en sous-sol, garantissant sécurité et praticité au quotidien. Possibilité d'une place de parking supplémantaire au tarif de 53 euros CC. Les informations sur les risques auxquels ce bien est exposé sont disponibles sur le site Géorisques : georisques. gouv. fr
Source
Logicimmo
Publié le
7 février 2026
Vue pour la dernière fois
il y a 9 heures