




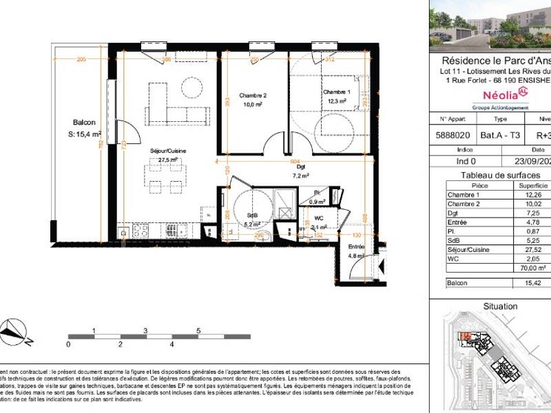
Pièces
3 pièces
Chambres
2 chambres
Salles de bain
1
Surface
70 m²
Étage
3
Balcon
Oui
À louer à Ensisheim, dans la résidence Les rives du lac, appartement T3 de 70 m² avec balcon, situé dans un programme neuf adapté aux seniors autonomes (60 ans et +), calme et sécurisé. Le logement offre une cuisine ouverte sur un séjour lumineux avec accès balcon, deux chambres, une salle d'eau adaptée avec douche à bac extra-plat, siège et barres d'appui, ainsi que des WC surélevés. Les volets sont motorisés pour plus de confort au quotidien. La résidence dispose de stationnements extérieurs et de garages selon disponibilité, ainsi que d'une salle commune conviviale favorisant les échanges et la vie sociale. Loyer : 892 € charges comprises ( chauffage collectif ) Disponible à partir du 1er juin 2026 Logement conventionné APL Demande de logement social obligatoire REF;5888020
Source
Logicimmo
Publié le
11 février 2026
Vue pour la dernière fois
il y a 3 jours