



Pièces
3 pièces
Chambres
2 chambres
Salles de bain
1
Surface
65 m²
Étage
5
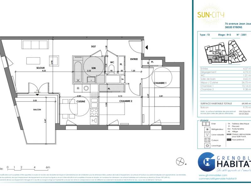
SANS HONORAIRES. À EYBENS, devenez locataire de notre programme immobilier récent, « RESIDENCE SUN CITY ». Au 76 avenue Jean Jaurès. Découvrez cet appartement de Type 3 de 65 m² au 5è et dernier étage. Il dispose d'une cuisine aménagée donnant accès sur un bel extérieur qui vous permettra de profiter du soleil. 2 chambres avec parquet stratifié. Salle de bain avec WC séparé. Le lot est pourvu du chauffage collectif. La location comprend une place de stationnement. SANS HONORAIRES. A SAISIR RAPIDEMENT. Zone soumise à encadrement des loyers loyer de référence majoré : 910,00 euros loyer de base : 636,95 euros complément de loyer : 0,00 euros Référence à rappeler lors de nos échanges : Les informations sur les risques auxquels ce bien est exposé sont disponibles sur le site Géorisques : Logement Locatif Interm.
Source
Logicimmo
Publié le
13 février 2026
Vue pour la dernière fois
il y a 3 jours