




Pièces
3 pièces
Chambres
2 chambres
Surface
86 m²
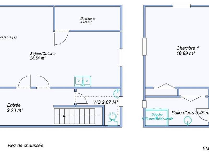
Brindas - 80 chemin de la Pillardière : maison de type 3 pièces de 86.07 m² comprenant : une grande entrée, séjour avec cuisne américaine meublée, wc séparé. A l'étage palier desservant deux grandes chambres, salle d'eau. Terrasse, stationnement pour deux voitures. Loyer 963.31 euros. Honoraires à la charge du locataire 581.66 euros dépôt de garantie 963.31 euros. Libre le 01 mars 2026. Honoraires de 581,66 euros TTC à la charge du locataire comprenant 100 euros TTC pour l'état des lieux. Loyer de base 963.31 euros/mois. Provision sur charges 8 euros/mois, régularisation annuelle. Dépôt de garantie 963,31 euros. Classe énergie E, Classe climat B Montant moyen estimé des dépenses annuelles d'énergie pour un usage standard, établi à partir des prix de l'énergie de l'année 2021 : entre 1780.00 et 2460.00 euros. Les informations sur les risques auxquels ce bien est exposé sont disponibles sur le site Géorisques : georisques.gouv.fr. Votre conseiller Cartimo-Lyon : Dirigeant. - Frédéric GILBERT Carte T 69012018000025925 RCP Allianz
Source
Logicimmo
Publié le
14 février 2026
Vue pour la dernière fois
il y a 4 jours