




Pièces
3 pièces
Chambres
2 chambres
Salles de bain
1
Surface
53 m²
Étage
4
Balcon
Oui
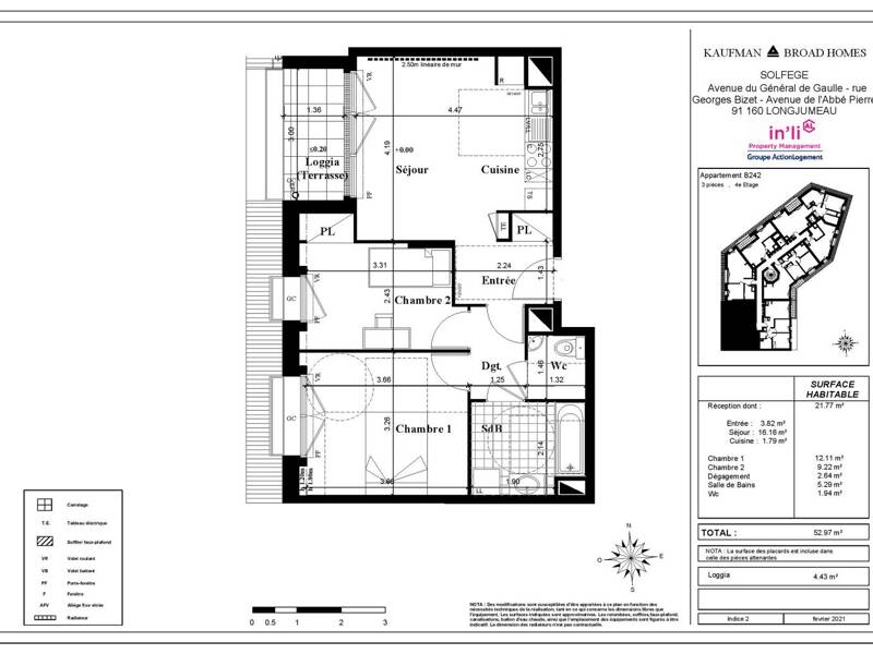
.. EXCLUSIVITÉ Sans frais d'agence. Laissez vous charmer par à louer à LONGJUMEAU (91160), cet appartement de 3 pièces de 52,97 m2. Il se situe au 4e étage d'un immeuble neuf datant de 2022 avec ascenseur. Il inclut une pièce à vivre, deux chambres, une cuisine ouverte, une salle de bains et des toilettes. L'appartement bénéficie d'un chauffage individuel. Il possède un local poussettes et un local vélos. Un balcon d'une surface de 4 m2 est également présent pour un gain d'espace bienvenu. Il est mis en location avec une place de parking. Des écoles (de la maternelle au lycée) sont implantées dans la commune.
Source
Logicimmo
Publié le
17 février 2026
Vue pour la dernière fois
il y a 3 jours