
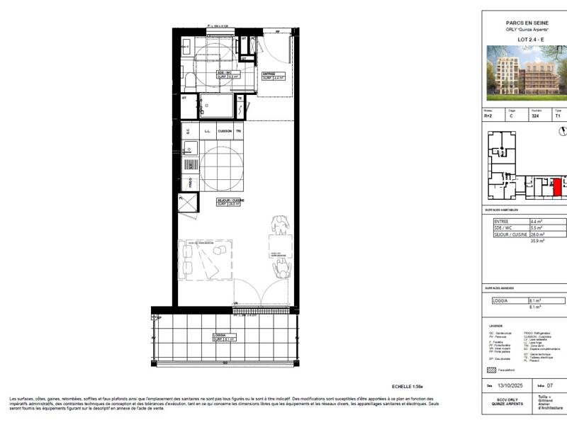
Pièces
1 pièce
Surface
36 m²
Étage
2
SANS HONORAIRES. RESIDENCE PARC EN SCENE - LIVRAISON FIN AVRIL 2026 Nous avons le plaisir de vous proposer ce studio de 32 m2 situé dans notre belle résidence 'parc en scène', comprenant : Une entrée avec placard, une salle d'eau avec un WC, un séjour avec cuisine ouverte de 22,8 m2 et une loggia de 8,5 m2. La résidence respectera les nouvelles normes environnementales grâce à l'utilisation de techniques de construction bas carbone et biosourcées et les logements seront raccordés au réseau de chaleur urbain permettant d'atteindre 98% d'énergie renouvelable. La nature sera présente sur les toits avec des toitures végétalisées et des plantations sous serres qui seront accessibles aux résidents. Des commerces ainsi qu'un centre médical, une crèche et une groupe scolaire de 16 classes prendront place dans le quartier. VISITE SUR PLANS DANS UN LOGEMENT TEMOIN SANS HONORAIRE. Réf : 387245 Référence à rappeler lors de nos échanges : A984 - 387245 Les informations sur les risques auxquels ce bien est exposé sont disponibles sur le site Géorisques : Logement Locatif Interm.
Source
Logicimmo
Publié le
18 février 2026
Vue pour la dernière fois
il y a 3 jours