




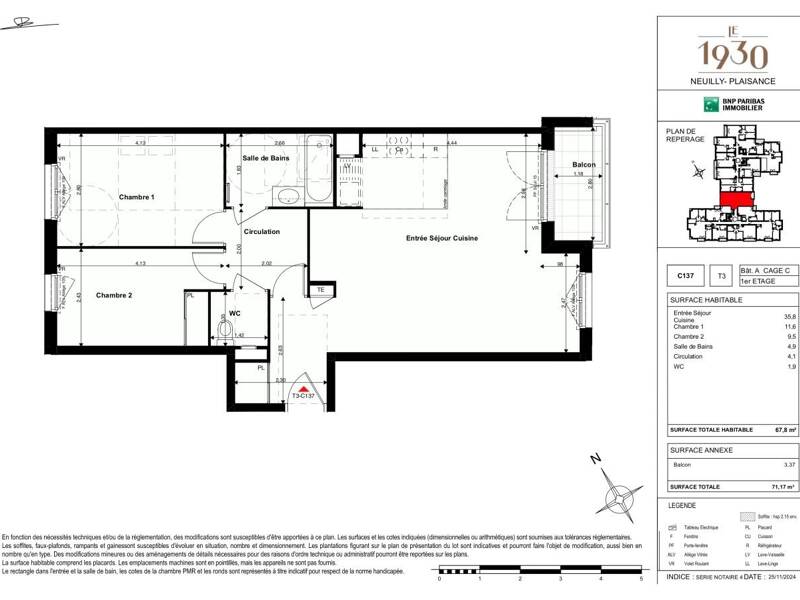
Pièces
3 pièces
Chambres
2 chambres
Surface
68 m²
Étage
1
Balcon
Oui
SANS HONORAIRES. Le programme immobilier « NEUILLY PLAISANCE M FOCH » vous propose cet appartement T3 de 68 m² au 1e étage avec balcon. Découvrez les appartements non-meublés dans un immeuble sécurisé (interphone et digicode) avec ascenseur de ce programme immobilier. L'appartement est pourvu du chauffage collectif et au gaz. Le logement dispose d'un parking. Le loyer est de 1 358 euros CC, dont 182,83 euros de charges. Il se situe à NEUILLY PLAISANCE (93360). Il y a des écoles de tous types à moins de 10 minutes à pied, tout comme 4 structures d'accueil pour les enfants en bas âge. Côté transports en commun, on trouve la station de RER Neuilly-Plaisance (ligne A) ainsi que les lignes 127, 214, 114 et 203 du bus à quelques pas de l'appartement, plaçant le programme immobilier à 10 min de Paris en rer. Les autoroutes A86, A4 et A3 et la nationale N104 sont accessibles à moins de 8 km. Vous trouverez un bassin de natation, 2 tennis et une bibliothèque à quelques minutes du bien. Il y a aussi des restaurants, des commerces, des boulangeries, 2 supermarchés, des épiceries et une poissonnerie. Référence à rappeler lors de nos échanges : B362 - 378881 Les informations sur les risques auxquels ce bien est exposé sont disponibles sur le site Géorisques : Logement Locatif Interm.
Source
Logicimmo
Publié le
18 février 2026
Vue pour la dernière fois
il y a 4 jours