




Pièces
4 pièces
Chambres
3 chambres
Salles de bain
1
Surface
95 m²
Terrasse
Oui
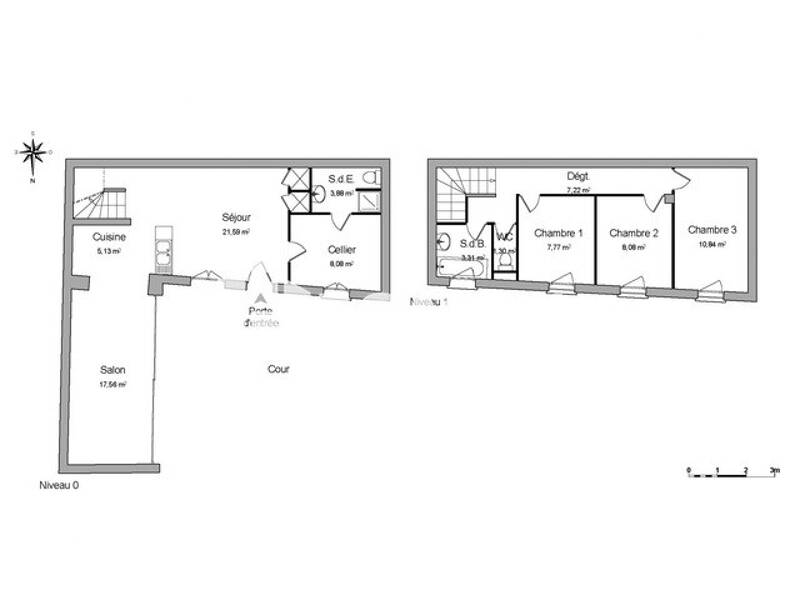
Authentique Maison de Village en Pierres avec Jardin et Terrasse au Cœur du Centre HistoriqueSituée dans le centre historique de Villeneuve, à proximité immédiate des commerces, cette maison de village en pierres allie charme d'antan et confort moderne. Le rez-de-chaussée vous accueille avec une entrée donnant sur un séjour avec coin cuisine, complété par une pièce supplémentaire et une salle d'eau fonctionnelle.À l'étage, l'espace nuit se compose de trois chambres spacieuses, d'une salle de bains et de WC indépendants. Les espaces extérieurs constituent un véritable atout avec une terrasse ensoleillée, un jardin privatif et un abri voiture pratique. Cette propriété de caractère offre un cadre de vie exceptionnel dans un environnement historique prisé.N'hésitez pas à déposer votre dossier sur notre site internet Foncia au plus vite. Assurance Multirisques Privilège *: 48.39 euros / mois *Services facultatifs, voir conditions en agences Les informations sur les risques auxquels ce bien est exposé sont disponibles sur le site Géorisques : georisques. gouv. fr
Source
Logicimmo
Publié le
18 février 2026
Vue pour la dernière fois
il y a 3 jours