




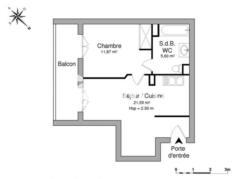
Pièces
2 pièces
Chambres
1 chambre
Salles de bain
1
Surface
39 m²
Terrasse
Oui
Dans un immeuble récent de standing et sécurisé, à deux pas du centre-ville de Chatou, du RER-A et des commerces, découvrez ce charmant deux pièces situé au deuxième étage avec ascenseur. Il se compose, d'une entrée, d'un séjour avec une cuisine ouverte équipée donnant sur terrasse, d'une chambre spacieuse avec placard et une salle de bain avec WC. L'eau chaude et le chauffage sont individuels électriques, offrant ainsi une régulation efficace de la consommation. Une place de parking vient compléter cette location, ajoutant une commodité supplémentaire. Les informations sur les risques auxquels ce bien est exposé sont disponibles sur le site Géorisques : georisques. gouv. fr
Source
Logicimmo
Publié le
19 février 2026
Vue pour la dernière fois
il y a 4 jours