




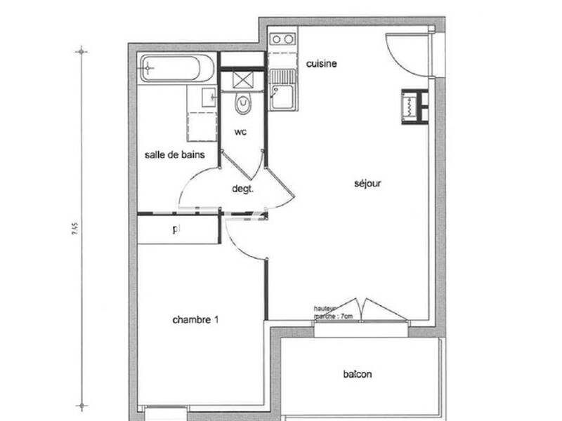
Pièces
2 pièces
Chambres
1 chambre
Surface
40 m²
Étage
1
Bouguenais - 6 rue du Grand Tertre - Résidence de 2018. Beau T2 en plein coeur de bouguenais, proche des commerces et parc, dans un joli programme récent très calme, très beau 2 pièces bien agencé, parking privatif. Chauffage, eau chaude et froide individuelles Gaz. Disponible 1er mars Assurance Multirisques Privilège *: 14.5 euros / mois *Services facultatifs, voir conditions en agences Les informations sur les risques auxquels ce bien est exposé sont disponibles sur le site Géorisques : georisques. gouv. fr
Source
Logicimmo
Publié le
19 février 2026
Vue pour la dernière fois
il y a 4 jours