




Pièces
4 pièces
Chambres
3 chambres
Salles de bain
1
Surface
85 m²
Étage
5
Terrasse
Oui
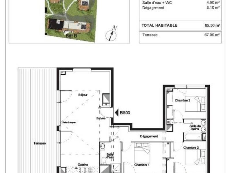
BEGLES - La résidence est située au coeur d'un îlot paysagé. Commerces et services à proximité. Ligne de tramway C ainsi que les lignes de bus accessibles en 5 minutes à pied. Appartement de type T4 au cinquième étage, offrant une entrée, une cuisine aménagée ouverte sur le séjour donnant sur une terrasse d'environ 67 m², trois chambres avec placards, une salle de bain avec doubles vasques, une salle d'eau avec wc et des wc indépendant. Place de Parking en sous-sol sécurisée. Chaudière gaz à condensation pour eau sanitaire et chauffage, parking. Bâtiment basse consommation (BBC). POUR TOUTE DEMANDE DE VISITE, RDV SUR LE SITE PICHET / LOUER, AFIN DE DEPOSER VOTRE CANDIDATURE SUR LE BIEN DE VOTRE SELECTION. Montant estimé des dépenses annuelles d'énergie pour un usage standard compris entre 920€ et 1290€ (estimation réalisée à partir des prix énergétiques de référence des années 2021 2022 2023) « Les informations sur les risques auxquels ce bien est exposé sont disponibles sur le site Géorisques : » Les honoraires locatifs seront revalorisés au 01/01/2026 conformément à l¿arrêté du 17/07/2025
Source
Logicimmo
Publié le
19 février 2026
Vue pour la dernière fois
il y a 4 jours