




Pièces
3 pièces
Chambres
2 chambres
Salles de bain
1
Surface
64 m²
Terrasse
Oui
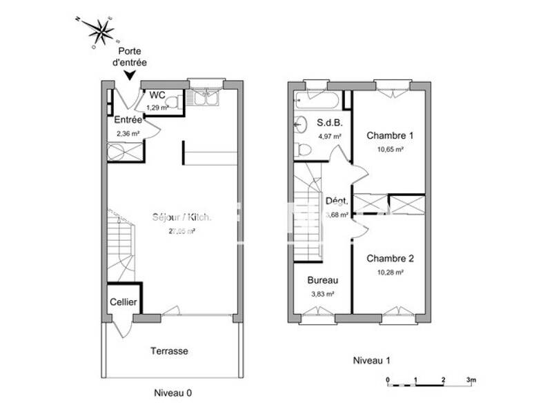
RESIDENCE LE CLOS DES ACCACIAS - Résidence sécurisée situé proche commerces et gareMaison offrant en Rez-dechaussée : entrée avec placard, wc, cellier, séjour/cuisine ouverte donnant sur une terrasse et jardin.A l'étage : 2 chambres, salle de bains avec wc, bureau.1 Place de parking extérieur privéChauffage et eau chaude individuelle électriqueEau froide comprise dans les charges Assurance Multirisques Privilège *: 41.84 euros / mois *Services facultatifs, voir conditions en agences Les informations sur les risques auxquels ce bien est exposé sont disponibles sur le site Géorisques : georisques. gouv. fr
Source
Logicimmo
Publié le
21 février 2026
Vue pour la dernière fois
il y a 3 jours