




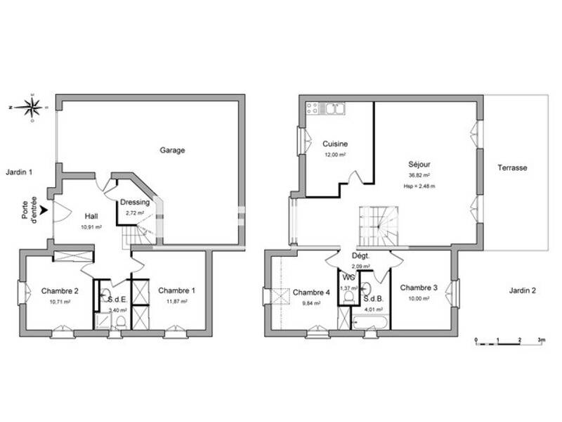
Pièces
6 pièces
Chambres
4 chambres
Salles de bain
1
Surface
116 m²
Terrasse
Oui
Charmante maison à l?agencement atypique offrant de beaux volumes et un cadre de vie agréable.Elle se compose d?une entrée, d?une vaste pièce de vie séjour/salon, de quatre chambres, d?une salle de bains, d?une salle d?eau, de WC indépendants, ainsi que d?une belle terrasse et d?un jardin idéal pour les moments de détente.Un grand garage complète ce bien aux prestations recherchées.? Situation privilégiée : proche gare, écoles et commodités, facilitant le quotidien et les déplacements.? Un bien rare, alliant originalité, espace et confort, à découvrir sans tarder. Assurance Multirisques Privilège *: 32.68 euros / mois *Services facultatifs, voir conditions en agences Les informations sur les risques auxquels ce bien est exposé sont disponibles sur le site Géorisques : georisques. gouv. fr
Source
Logicimmo
Publié le
21 février 2026
Vue pour la dernière fois
il y a 3 jours