




Pièces
2 pièces
Chambres
1 chambre
Surface
38 m²
Étage
1
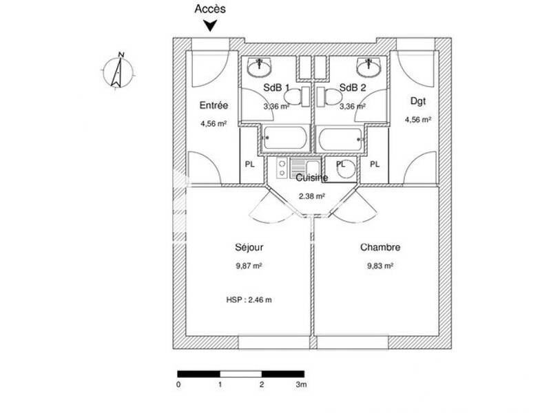
idéal étudiant, dans résidence fermée, avec salle de sport, laverie, gardien, appartement t2 comprenant 2 entrées, 2 séjours, une cuisine commune équipée, 2 salle d'eau, une place de parking. Assurance Multirisques Privilège *: 12.69 euros / mois *Services facultatifs, voir conditions en agences Les informations sur les risques auxquels ce bien est exposé sont disponibles sur le site Géorisques : georisques. gouv. fr
Source
Logicimmo
Publié le
21 février 2026
Vue pour la dernière fois
il y a 3 jours