




Pièces
2 pièces
Chambres
1 chambre
Surface
39 m²
Étage
2
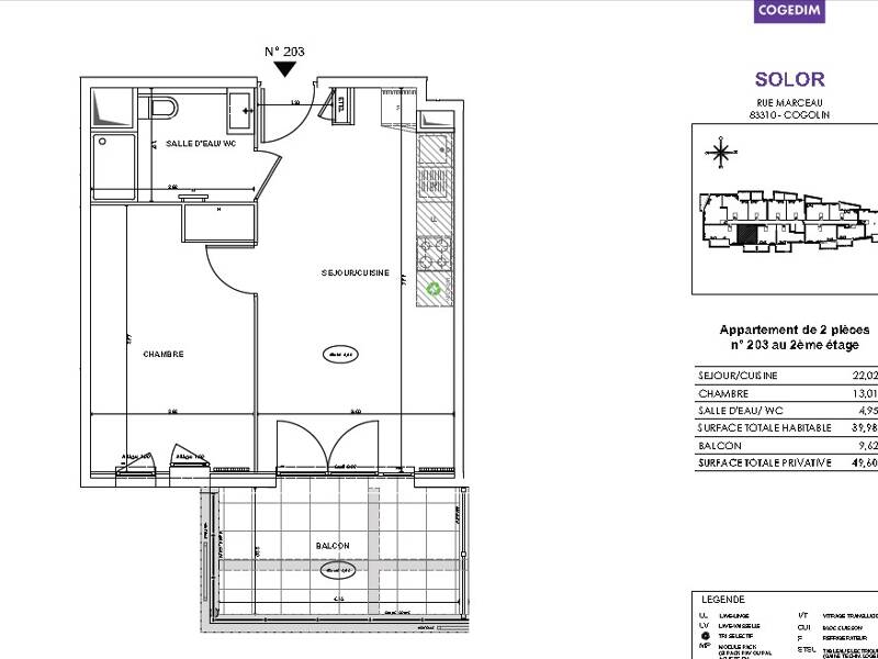
NOUVEAU COGOLIN, rue Marceau, face à DARTY, résidence récente , à proximité immédiat du centre ville . Piscine sur le toit terrasse 203 - Au 01er étage avec ascenseur, Appartement T2 de 39.98m² comprenant un séjour cuisine aménagée ( plaque et hotte ) de 22.02m², une chambre avec placard de 13.01m², une salle d'eau avec WC . Grande Terrasse de 9.62m² Disponible J01/04/2026 Loué avec un GARAGE en sous sol Loyer mensuel : 669€ Provision mensuelle de charges : 70€ Dépôt de garantie : 669€ Honoraires charge locataire: Honoraires de visite, de constitution du dossier du locataire et de rédaction du bail : 8 € TTC/m² soit 319.84€ ttc + honoraires de réalisation de l'état des lieux d'entrée : 3 € TTC/m² soit 119.94€ ttc
Source
Logicimmo
Publié le
22 février 2026
Vue pour la dernière fois
il y a 3 jours