



Pièces
2 pièces
Chambres
1 chambre
Surface
54 m²
Étage
1
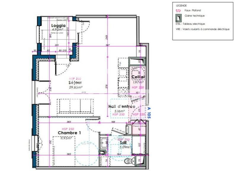
A louer à l'année - Centre bourg de Saint-Pierre d'Oléron (17310), tous commerces à pied ! Dans une nouvelle résidence avec ascenseur, au 1er étage : APPARTEMENT neuf (livraison 1er trimestre 2026) d'une surface d'environ 54 m² comprenant hall d'entrée donnant sur un séjour avec cuisine, une chambre, une salle d'eau avec wc, un cellier et une loggia d'environ 5 m². DPE sera réalisé à la fin de la construction. Disponible Avril 2026. Location sous GLI. Loyer : 620 euros + 50 euros de charges (charges copropriété résidence). Dépôt de garantie : 620 euros. Honoraires agence : 594 euros. Référence de l'annonce : 12301. Les informations sur les risques auxquels ce bien est exposé sont disponibles sur le site Géorisques :
Source
Logicimmo
Publié le
23 février 2026
Vue pour la dernière fois
il y a 5 jours