
Pièces
3 pièces
Chambres
2 chambres
Surface
66 m²
Étage
5
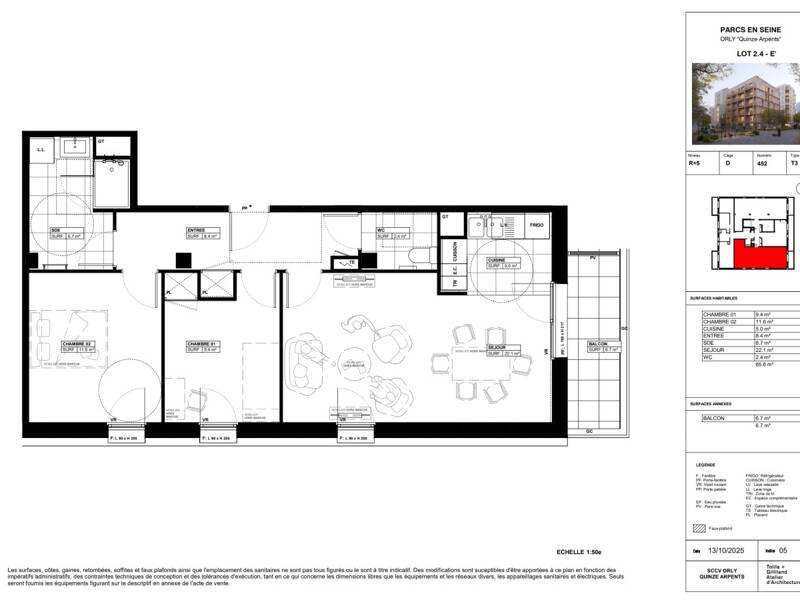
SANS HONORAIRES. RESIDENCE PARC EN SCENE - LIVRAISON FIN AVRIL 2026 Nous avons le plaisir de vous proposer ce T3 de 66 m2 situé dans notre belle résidence 'parc en scène', comprenant : Une entrée avec placard, une salle d'eau avec un WC séparé , un séjour avec cuisine ouverte, deux chambres et une loggia. Charges incluses : eau chaude, eau froide et chauffage collectif. La résidence respectera les nouvelles normes environnementales grâce à l'utilisation de techniques de construction bas carbone et biosourcées et les logements seront raccordés au réseau de chaleur urbain permettant d'atteindre 98% d'énergie renouvelable. La nature sera présente sur les toits avec des toitures végétalisées et des plantations sous serres qui seront accessibles aux résidents. Des commerces ainsi qu'un centre médical, une crèche et une groupe scolaire de 16 classes prendront place dans le quartier. VISITE SUR LOGEMENT TEMOIN ET CHOIX SUR PLAN. SANS HONORAIRE. Référence à rappeler lors de nos échanges : A984 - 387280 Les informations sur les risques auxquels ce bien est exposé sont disponibles sur le site Géorisques : Logement Locatif Interm.
Source
Logicimmo
Publié le
23 février 2026
Vue pour la dernière fois
il y a 3 jours