




Pièces
1 pièce
Salles de bain
1
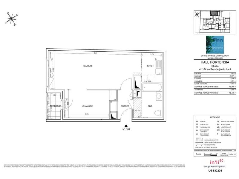
Surface
46 m²
Terrasse
Oui
..Exclusivité appartement T1 à CACHAN, terrasse.Sans frais d'agence.L'appartement comprend une pièce à vivre de 46 m2 avec une kitchenette et une salle de bains équipée d'un WC.Situé dans un immeuble de 4 étages construit en 2014, sécurisé et avec ascenseur.Terrasse. Chauffage collectif au gaz.Commerces et transports à proximité, notamment la ligne B du RER avec les stations Bagneux (1,7 km) et Arcueil-Cachan (1,8 km). Accès facile aux grandes artères routières.
Source
Logicimmo
Publié le
23 février 2026
Vue pour la dernière fois
il y a 4 jours