




Pièces
4 pièces
Chambres
3 chambres
Salles de bain
1
Surface
79 m²
Étage
4
Terrasse
Oui
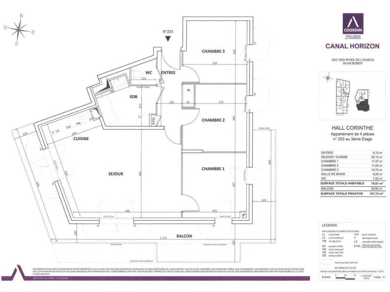
SANS HONORAIRES. Bondy, rue Nadia MURAD. A louer, beau T4 de 79 m2 avec vue sur le canal de l'Ourcq. Découvrez ce logement situé au 4eme étage avec ascenseur qui se compose comme suit : entrée, pièce de vie avec cuisine ouverte (meublée) de 32 m2, belle terrasse de 28 m2, trois chambres ( une de 10 m2 et deux de 11 m2), salle de bains (baignoire) et WC séparés. Au sous-sol, une place de stationnement. Compris dans les charges : chauffage collectif, eau chaude/froide, entretien des parties communes, ascenseur, ordures ménagères et stationnement. Photos non contractuelles sauf plan. Référence : 330622. Zone soumise à encadrement des loyers loyer de référence majoré : 1 090,20 euros loyer de base : 1 031,65 euros complément de loyer : 0,00 euros Référence à rappeler lors de nos échanges : 6900 - 330622 Les informations sur les risques auxquels ce bien est exposé sont disponibles sur le site Géorisques : LAC / Logement Abord.contract.
Source
Logicimmo
Publié le
24 février 2026
Vue pour la dernière fois
il y a 4 jours