




Pièces
1 pièce
Surface
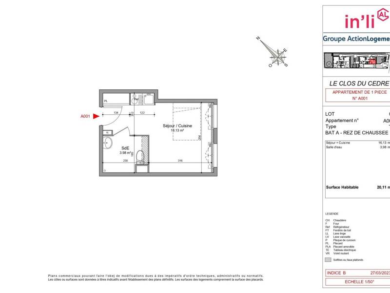
20 m²
..Exclusivité appartement neuf à Carrières sur Seine. Sans frais d'agence. Cet appartement T1 comprend une pièce à vivre de 20,3 m2 avec une cuisine ouverte et une salle d'eau. L'immeuble, situé au rez-de-chaussée, compte trois étages. Construit en 2024, il ne possède pas d'ascenseur ni de régisseur. Local à vélos et local à poussettes disponibles. Chauffage collectif au gaz. Une place de parking incluse. Commerces et transports en commun à proximité. Gare RER ligne A à environ 1,9 km (station Houilles-Carrières-sur-Seine). Grands axes routiers accessibles. Paris à 14 km environ.
Source
Logicimmo
Publié le
24 février 2026
Vue pour la dernière fois
il y a 3 jours