




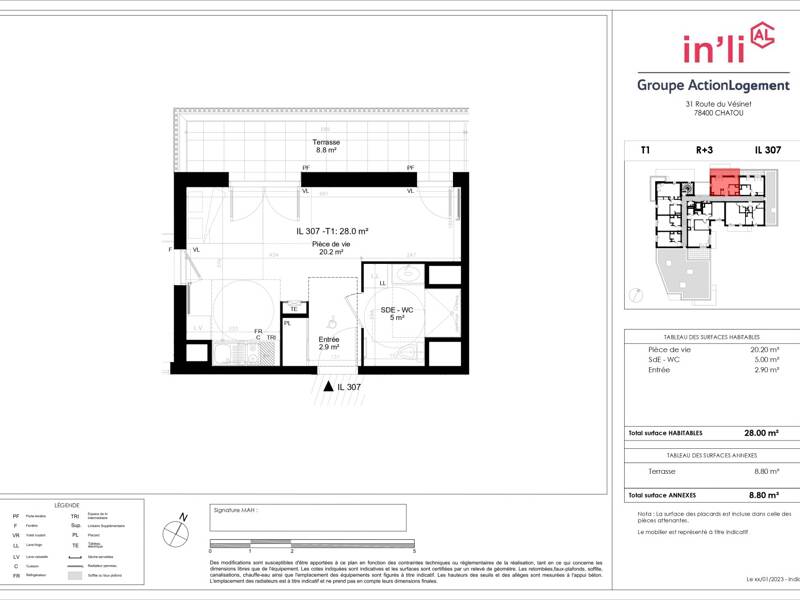
Pièces
1 pièce
Surface
28 m²
Étage
3
Terrasse
Oui
..Sans frais d'agence, direct bailleur In'li. A louer : à CHATOU (78400), Studio de 28 m2 en rez-de-chaussée avec une terrasse de 8 m2 dans un immeuble de 2024. Ce studio se compose d'une pièce principale de 20 m2 avec cuisine ouvrant sur la terrasse, salle d'eau / WC. Le chauffage collectif est compris dans les charges. L'appartement est loué avec une place de stationnement. Niveau transports en commun, le RER A Le Vésinet-Centre ou Le Vésinet -Le Pecq sont à 15 mn à pied.
Source
Logicimmo
Publié le
24 février 2026
Vue pour la dernière fois
il y a 4 jours