




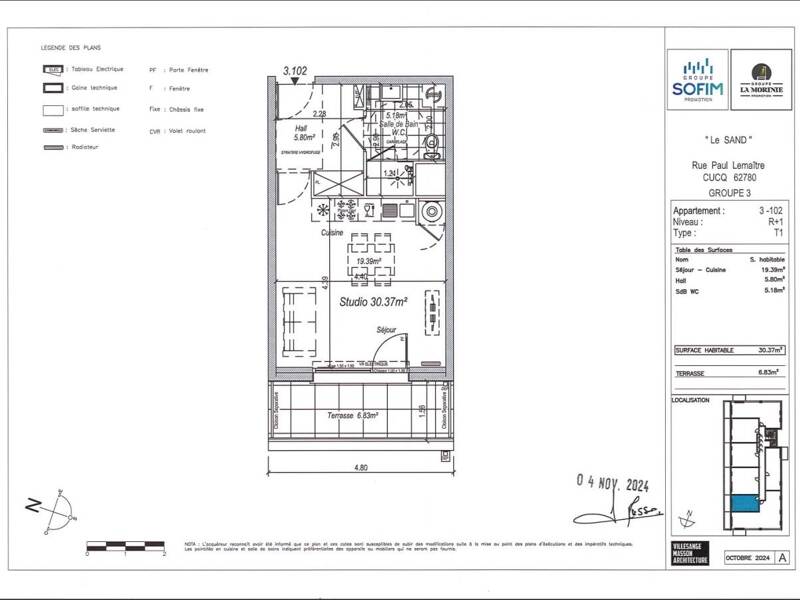
Pièces
1 pièce
Surface
31 m²
Étage
1
SANS HONORAIRES. SANS HONORAIRES - Disponible à compter du 22/04/2026 - NEUF - chauffage électrique - y compris 1 parking et l'acompte d'eau froide. Parc avec un cours d'eau végétalisé. Résidence au cœur du bourg de Cucq qui propose boulangerie, poissonnerie, fleuriste, poste, marché le dimanche etc.. Proximité de Stella plage et du Touquet Paris plage. Venez découvrir sans tarder notre logement témoin. Référence à rappeler lors de nos échanges : B198 - 385704 Les informations sur les risques auxquels ce bien est exposé sont disponibles sur le site Géorisques : Logement Locatif Interm.
Source
Logicimmo
Publié le
25 février 2026
Vue pour la dernière fois
il y a 1 jour