



Pièces
2 pièces
Chambres
1 chambre
Surface
46 m²
Terrasse
Oui
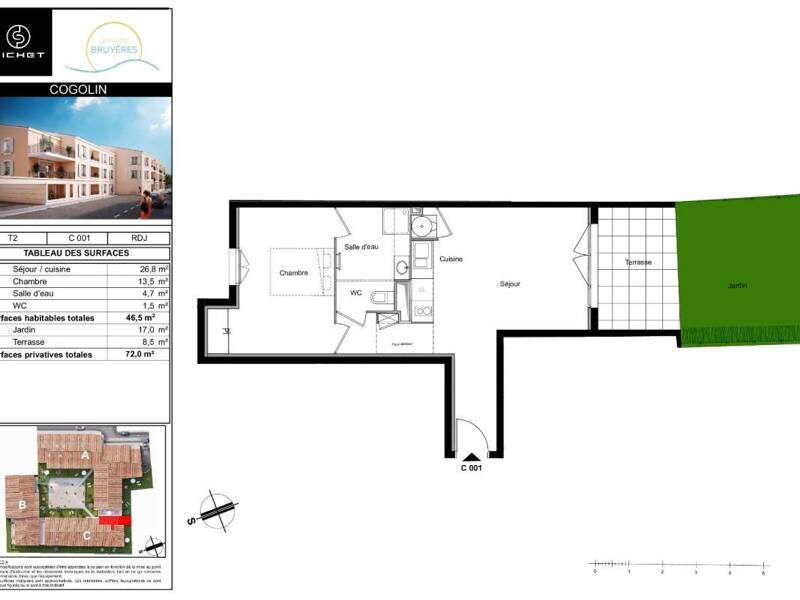
COGOLIN La résidence Le Clos des Bruyères est installée dans le quartier du Rialet à l'angle de la rue Henri Barbusse. Dans un quartier calme et résidentiel qui se situe à proximité immédiate du centre-ville de Cogolin et de tous ses commerces. Le cœur de ville est facilement accessible à pied, tout comme les écoles, les différents services de la ville et les nombreux équipements culturels. Appartement de type 2 au rez de chaussée offrant une entrée, une cuisine aménagée, un séjour ouvert sur une terrasse et jardin de 25 m², une chambre avec placard et salle d eau attenante, Wc séparés. Le chauffage sera électrique et la production d'eau chaude sera assurée par ballon électrique thermodynamique individuel. Place de parking, ascenseur, local 2 roues. Bâtiment basse consommation (BBC). Norme RT 2012 POUR TOUTE DEMANDE DE VISITE, RDV SUR LE SITE PICHET / LOUER, AFIN DE DEPOSER VOTRE CANDIDATURE SUR LE BIEN DE VOTRE SELECTION. Les informations sur les risques auxquels ce bien est exposé sont disponibles sur le site Géorisques : georisques. gouv. fr
Source
Logicimmo
Publié le
25 février 2026
Vue pour la dernière fois
il y a 3 jours