




Pièces
3 pièces
Chambres
2 chambres
Salles de bain
1
Surface
63 m²
Balcon
Oui
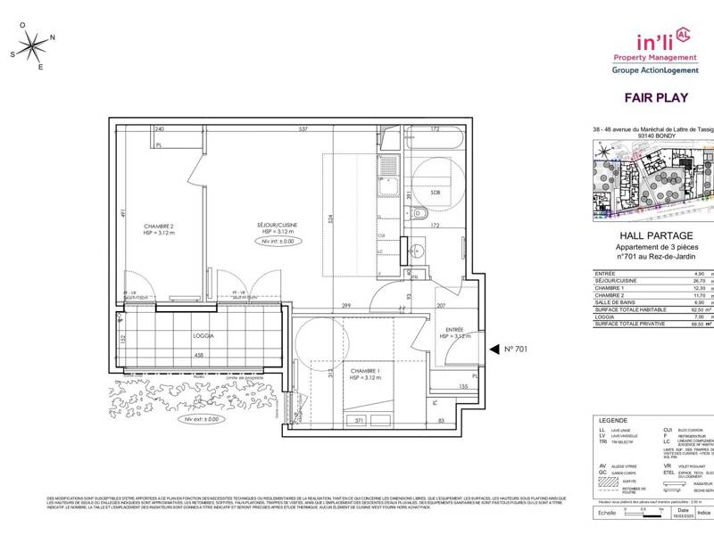
..Sans frais d'agence, direct bailleur In'li. Votre prochaine adresse vous attend à Bondy ! Livrée le 28/11/2025, votre résidence neuve se situe au 34 / 36 avenue du Maréchal de Lattre de Tassigny, à 2 pas du centre-ville et de toutes ses commodités. Vous bénéficierez également de la proximité des transports (Tram T1 Pont de Bondy et RER E Bondy à quelques minutes à pied, arrivée du T Zen 3 prévue en 2028).Conformément à l'indice de référence des loyers (IRL), le loyer hors charges affiché sera révisé de 1,04 % à compter du 1er janvier 2026. A louer, Appartement de 62,50m2 au rez de jardin qui se compose d'une entrée avec rangement , un séjour de 26,70m2 avec cuisine ouverte donnant accès à un loggia de 7,00m2 exposé est. 2 chambres de 12,30m2 et 11,70m2. Une salle de bain et WC séparé. Chauffage collectif au gaz. NB : photos des logements non contractuelles, en illustration des prestations types.Réservation sur plan uniquement SANS VISITES.
Source
Logicimmo
Publié le
26 février 2026
Vue pour la dernière fois
il y a 4 jours