




Pièces
3 pièces
Chambres
2 chambres
Salles de bain
1
Surface
62 m²
Étage
1
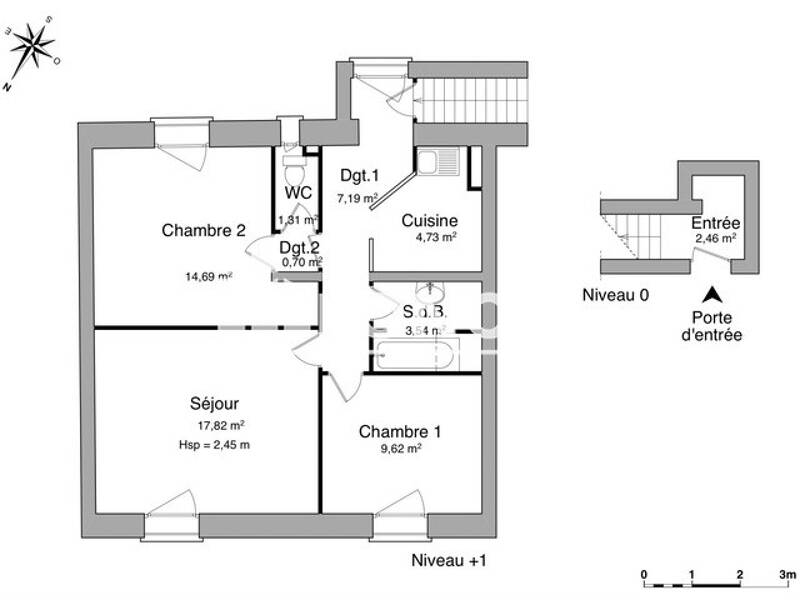
Proche Rives De Meurthe, ce jolie appartement T3 situé Avenue Carnot à Saint-Max, au 1er étage d?un immeuble bien entretenu en plein centre-ville. D?une superficie d?environ, ce logement lumineux se compose avec une entrée, un séjour, une cuisine aménagée, deux chambres, une salle de bain et un wc séparé.En annexe : Un boxIdéalement situé à proximité immédiate des commerces, écoles et transports, cet appartement offre un cadre de vie pratique et agréable. Contactez-nous dès maintenant notre équipe se fera un plaisir de vous accompagner ! Les informations sur les risques auxquels ce bien est exposé sont disponibles sur le site Géorisques : georisques. gouv. fr
Source
Logicimmo
Publié le
26 février 2026
Vue pour la dernière fois
il y a 2 jours