




Pièces
2 pièces
Chambres
1 chambre
Surface
43 m²
Étage
1
Balcon
Oui
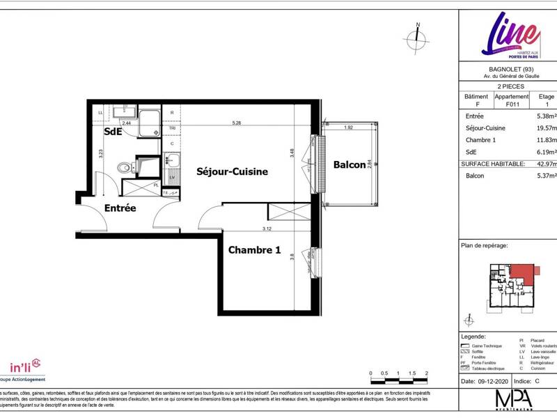
..EXCLUSIVITÉ Sans frais d'agence, direct bailleur In'li. À proximité du métro Gallieni (ligne 3), laissez vous charmer par cet appartement de 2 pièces plein est de 42,97 m2 à BAGNOLET (93170). Il est situé au 1er étage d'un immeuble neuf construit en 2021 de 15 étages. Ce dernier est équipé d'un ascenseur. Son intérieur comporte une pièce à vivre, une chambre et une cuisine ouverte. Le chauffage est collectif. Un balcon est présent pour un gain d'espace appréciable. Il y a des écoles de tous niveaux à moins de 10 minutes à pied, tout comme huit structures d'accueil pour les tout-petits. Côté transports en commun, on trouve la ligne de métro 3 (Gallieni) ainsi que la ligne de tramway T3b (Porte de Bagnolet) dans un rayon de 1 km.
Source
Logicimmo
Publié le
26 février 2026
Vue pour la dernière fois
il y a 5 jours