




Pièces
2 pièces
Chambres
1 chambre
Salles de bain
1
Surface
44 m²
Étage
2
Balcon
Oui
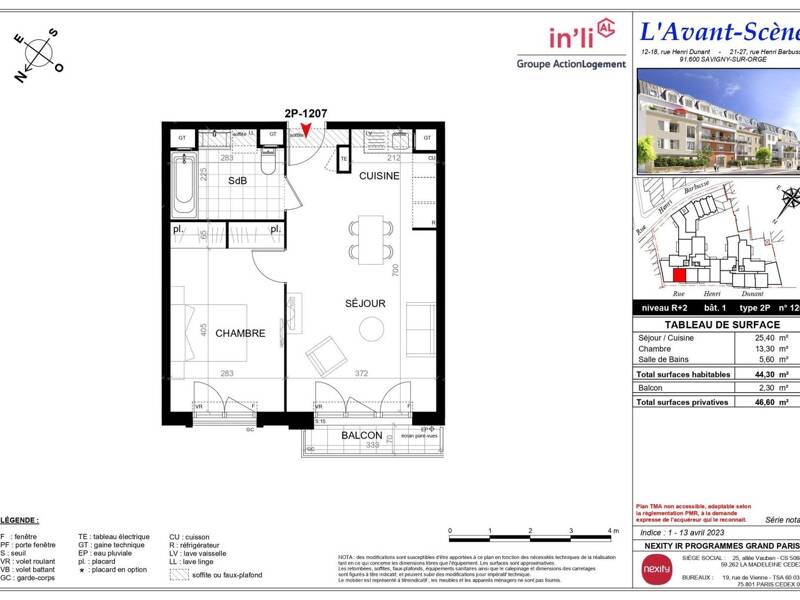
..EXCLUSIVITÉ - APPARTEMENT 2 PIÈCES Sans frais d'agence, À 885 m du RER C (15 min de Paris), nous vous présentons cet appartement de 2 pièces exposé ouest de 44,3 m2 à louer à SAVIGNY SUR ORGE (91600). Il est situé au 2e étage d'un immeuble neuf de quatre étages datant de 2024. Ce dernier est équipé d'un ascenseur. Il inclut une pièce à vivre, une chambre, une cuisine ouverte et une salle de bains. Chauffage collectif Il dispose d'un balcon de 2 m2 de surface. Le bâtiment comporte un local poussettes et un local vélos. Il est loué avec une place de parking. Etablissements scolaires à moins de 10 minutes à pied. Niveau transports, on trouve la ligne de RER C (Petit-Vaux) ainsi que deux gares (Petit Vaux et Savigny-sur-Orge) dans un rayon de 1 km. Proche de toutes commodités.
Source
Logicimmo
Publié le
26 février 2026
Vue pour la dernière fois
il y a 3 jours