




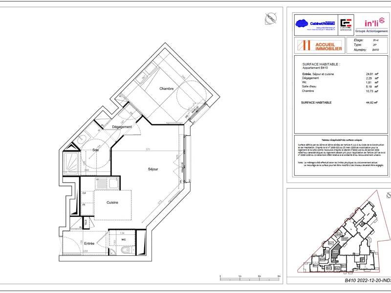
Pièces
2 pièces
Chambres
1 chambre
Surface
45 m²
Étage
4
..Sans frais d'agence. Résidence neuve située au 164 Boulevard de Strasbourg, livraison prévue AVRIL 2026. Vous pourrez rejoindre Paris Nation en 7 minutes via le RER A depuis la gare de Val de Fontenay. À louer F2 de 44,82m2 au 4ème étage, qui se compose d'une pièce à vivre de 24,81 m2 (entrée, cuisine ouverte et séjour), et d'une chambre de 10,73m2.Un parking complète cette offre. Chauffage collectif au gaz inclus dans les charges. NB : photos non contractuelles, en illustration des prestations types. Réservation sur plan uniquement sans visites.
Source
Logicimmo
Publié le
26 février 2026
Vue pour la dernière fois
il y a 4 jours