




Pièces
3 pièces
Chambres
2 chambres
Salles de bain
1
Surface
62 m²
Étage
2
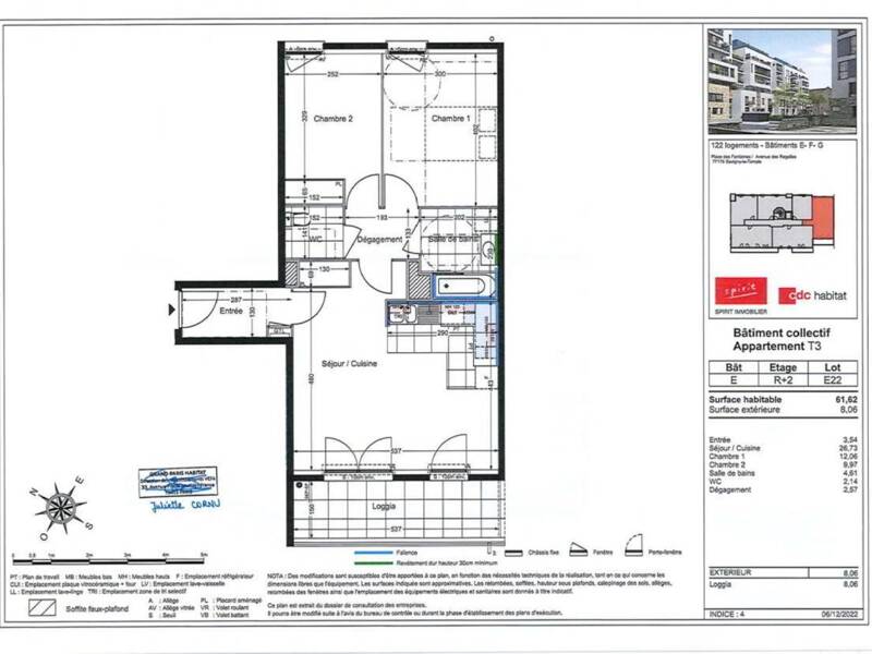
SANS HONORAIRES. CDC HABITAT / RESIDENCE LES REGALLES VISITE APPARTEMENT TEMOIN + PLANS Commune situé à 20 d'EVRY et à 38 Km de PARIS, la résidence « LES REGALLES » se situe à 10 minutes de la gare RER de Savigny le temple. Bien implanté dans la commune, elle assure une proximité des écoles et des commerces à moins de 3 minutes à pieds. Venez découvrir une résidence situé dans un endroit calme et proche d'espaces vert pour un cadre de vie aimable et agréable. Notamment à proximité des commerces locaux et des transports en communs ainsi qu'à 5 minute de l'axe routier A5 et N104. Ce magnifique TYPE 3 de 62 m² au 2e étage avec ascenseur est composé d'une cuisine entièrement aménagée et ouverte sur séjour de 25m² environ , une grande chambre d'environ 12m² , une deuxième de 10 m² une salle de bain moderne et WC séparé. Espace extérieur. Logement fonctionnel et lumineux, carrelage, double vitrage, volets roulants, parking sécurisé. Eau froide, eau chaude et ainsi que la place de parking sont inclus dans le prix du loyer. LIVRAISON MI - MARS 2026 Référence à rappeler lors de nos échanges : A512 - 380846 Les informations sur les risques auxquels ce bien est exposé sont disponibles sur le site Géorisques : LAC / Logement Abord.contract.
Source
Logicimmo
Publié le
27 février 2026
Vue pour la dernière fois
il y a 3 jours