




Pièces
1 pièce
Surface
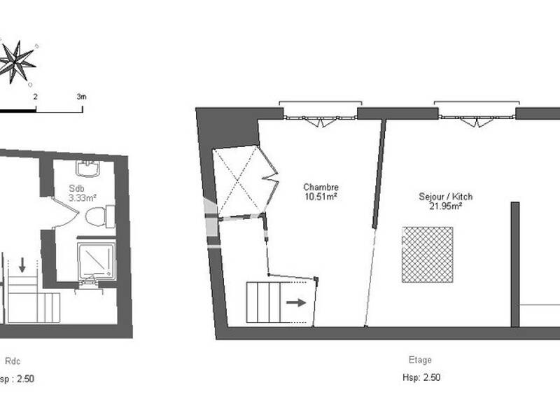
43 m²
Étage
3
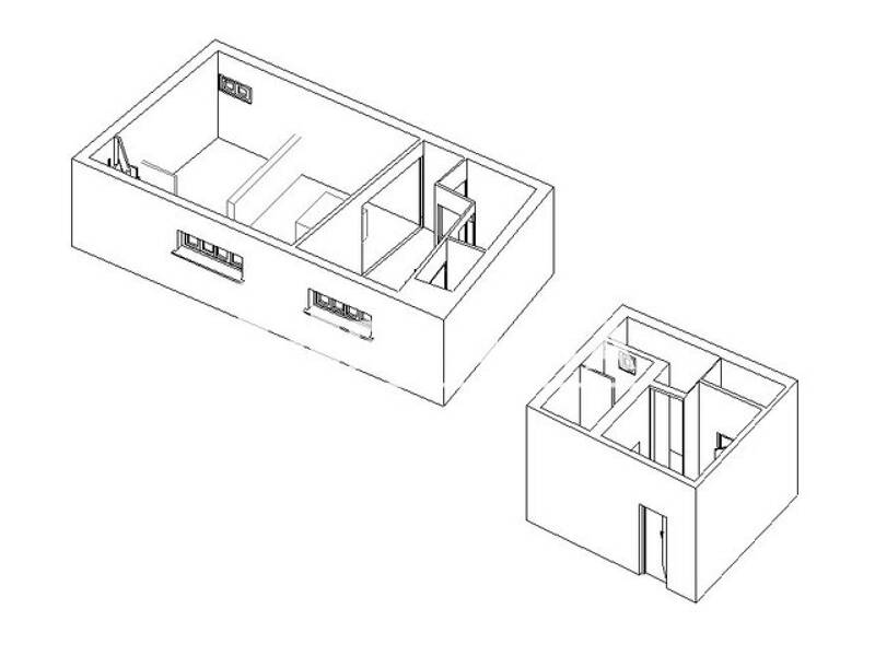
Dans le quartier de Ferrières à proximité de toutes les commodités, au sein d'un bel immeuble de caractère, au 3ème et dernier étage sans ascenseur un appartement composé d'une pièce principale avec cuisine ouverte, chambre, salle d'eau et wc Assurance Multirisques Privilège *: 12.03 euros / mois *Services facultatifs, voir conditions en agences Les informations sur les risques auxquels ce bien est exposé sont disponibles sur le site Géorisques : georisques. gouv. fr
Source
Logicimmo
Publié le
27 février 2026
Vue pour la dernière fois
il y a 4 jours