




Pièces
3 pièces
Chambres
2 chambres
Surface
75 m²
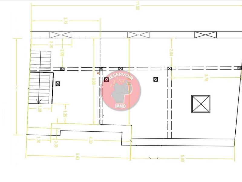
Atelier 75 m² à aménager – Fort potentiel – Idéal projet investissement. À vendre atelier brut de 75 m² offrant un superbe volume et un fort potentiel d'aménagement pour un T3 avec deux belles chambres. Au premier et dernier étage d'une petite copro en fond de cour au calme. Bien vendu en l'état – travaux d'aménagement à prévoir par l'acquéreur (création des pièces, finitions, équipements). Opportunité rare pour investisseur ou particulier souhaitant créer un bien sur-mesure. - Surface Carrez : 75 Prix du bien : 89000 Honoraires à la charge du vendeur La loi impose que le niveau de performance (DPE) des logements soit compris, à compter du 01/01/2028, entre les classes A et E Les informations sur les risques auxquels ce bien est exposé sont disponibles sur le site Géorisques : notre barème d'honoraires est consultable à l'adresse suivante : Le bien est soumis au statut de la copropriété, nombre de lots : A propos de la copropriété : Nombre de lots : 2 Les charges prévisionnelles annuelles de la copropriété sont de : euros Pas de procédure Procédure d'alerte Procédure de sauvegarde - Numéro SIREN de l'agence : 501395917 Carte pro 21022017000021989 Numéro registre d'agent commercial de l'agent immobilier : 789761566
Source
Logicimmo
Publié le
27 février 2026
Vue pour la dernière fois
il y a 4 jours