




Pièces
2 pièces
Chambres
1 chambre
Salles de bain
1
Surface
46 m²
Étage
1
Terrasse
Oui
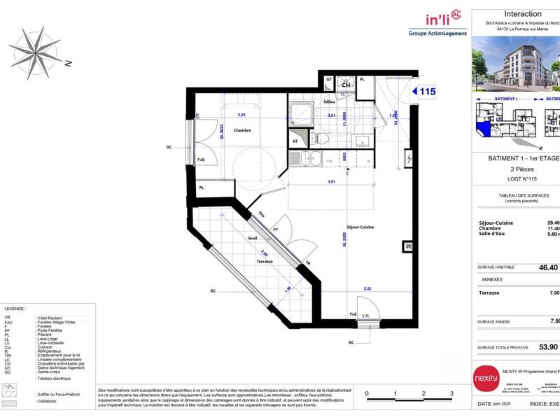
..Sans frais d'agence. Votre prochaine adresse vous attend au Perreux sur Marne ! Votre résidence neuve (livraison 24 Février 2026) se situe au 171 Boulevard d'Alsace Lorraine, proche de toutes commodités. A 5 minutes du RER A « Neuilly-Plaisance » qui vous mènera en moins de 25 minutes à Paris Gare de Lyon. A louer, Appartement de 46,40m2 orienté Est, au 1er étage avec une terrasse de 7,50m2 qui se compose d'une entrée avec rangement , un séjour avec cuisine ouverte aménagée de 29,40m2 qui donne sur la terrasse. 1chambre de 11,40m2. Une salle de bain et WC. Chauffage individuel au gaz . NB : photos des logements non contractuelles, en illustration des prestations types.Réservation sur plan uniquement SANS VISITES.
Source
Logicimmo
Publié le
27 février 2026
Vue pour la dernière fois
il y a 4 jours