



Pièces
3 pièces
Chambres
2 chambres
Surface
62 m²
Étage
3
Balcon
Oui
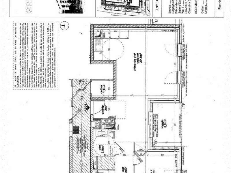
Appartement de 62 m2 à louer sur Villefranche-sur-Saône L'immeuble le Green Edge (50 appartements répartis sur deux bâtiments) est en fin de chantier, situé dans un quartier résidentiel prisé, proche de la gare de de Villefranche/Saône, à deux pas de la place du promenoir, de la rue Nationale, du marché couvert et à côté du parc Vermorel. Tous commerces très proches. L'appartement très calme situé au 3ème étage avec ascenseur dispose d'un balcon minimum 1.9 m de profondeur (prise de courant et point lumineux) orienté sud avec vue dégagée sur espaces verts (beaux et grands arbres existants). Cuisine entièrement neuve et équipée : meublée, plaque induction, four, hotte, lave-vaisselle, réfrigérateur, micro-ondes. Les deux chambres disposent d'un placard intégré. Cellier sur le palier avec prise de courant et point lumineux. Le chauffage est relié au réseau chaleur urbain SYTRAIVAL avec compteur individuel, menuiseries aluminium, volets roulants électriques et brises soleil, carrelage dans les pièces de vie, parquet stratifié dans les chambres, faïences toute hauteur dans la salle d'eau. Garage individuel sécurisé, fermé en sous sol. Les charges comprennent le chauffage et eau chaude. Chercher un logement, c'est l'enfer, alors on a créé 123 Loger pour vous simplifier la vie. Combien ça coûte ? Vous réglez le pass de 34 euros (29 euros pour les étudiants). Le pass est mensuel, votre profil reste actif tant que vous restez abonné-e. Sans engagement, vous pouvez vous désabonner très facilement. Nous offrons une garantie satisfait-e ou remboursé-e pendant 3 mois. Comment ça marche ? Sur 123 Loger, ce sont les propriétaires qui contactent les locataires et ça change tout. 1- Vous définissez vos critères : villes, surface, budget, etc 2- Vous décrivez votre profil locataire : CDI, étudiant, indépendant, revenus, garant, etc… Une fois pour toute ! 3- Les propriétaires consultent votre profil et vous contactent directement. À bientôt sur 123 Loger.
Source
Logicimmo
Publié le
28 février 2026
Vue pour la dernière fois
il y a 3 jours