




Pièces
3 pièces
Chambres
2 chambres
Salles de bain
1
Surface
60 m²
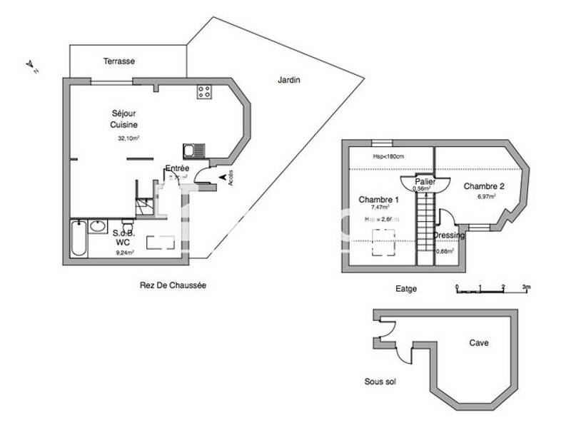
maison de 60m² située à caen comprenant deux chambres, une cuisine ouverte aménagée et équipée, avec jardin et cave. entrée, cuisine ouverte, séjour, salle de bain, 2 chambres, jardin + cave Les informations sur les risques auxquels ce bien est exposé sont disponibles sur le site Géorisques : georisques. gouv. fr
Source
Logicimmo
Publié le
28 février 2026
Vue pour la dernière fois
il y a 4 jours