




Pièces
6 pièces
Chambres
5 chambres
Surface
104 m²
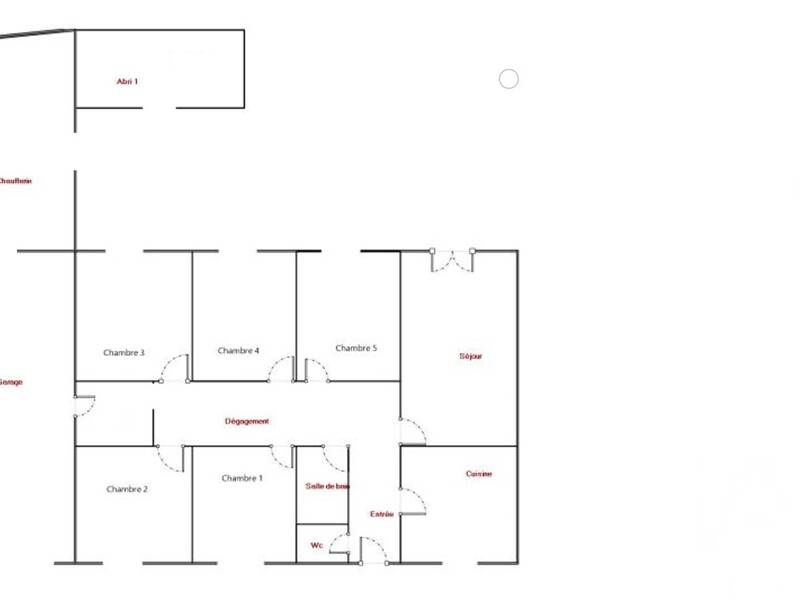
iad France - Ludovic Seguy vous propose: Ref 1959099-LS COULOMBIERS (86600) Dans une impasse, maison ossature bois de type 6 d'une surface habitable de 104 m² sur un terrain clos de 801 m². - La maison se compose d'une entrée, cuisine indépendante, séjour ensoleillé, dégagement avec placards, 5 chambres dont une avec point d'eau, cellier, salle d'eau, toilette séparée puis garage avec atelier, chaufferie et divers dépendances (poulailler). - La maison est équipée d'un chauffage et d'une production d'eau chaude sanitaire faite par une chaudière au fuel et l'ensemble est raccordé au tout à l'égout. Les fenêtres sont en bois avec simple vitrage. - La couverture a été refaite en 2018 (facture), l'isolation des combles en 2019 et le ravalement de façade l'année dernière. - L'ensemble des commodités et infrastructures du centre bourg de la commune sont accessibles à pied. - Le bien est situé à 5 min de Lusignan, 15 min de Poitiers et 50 min de Niort, (Paris à 1h30 de TGV par la gare de Poitiers). - Plus de photos du bien sur le site Honoraires d'agence à la charge de l'acquéreur. Prix honoraires inclus : 150000 euros. Prix hors honoraires : 142000 euros. Honoraires TTC à la charge de l'acquéreur (5,63% du prix du bien hors honoraires) : 8000 euros. Information d'affichage énergétique sur ce bien : classe ENERGIE E indice 176 et classe CLIMAT E indice 54. Les informations sur les risques auxquels ce bien est exposé, y compris l'obligation légale de débroussaillement, sont disponibles sur le site Géorisques : La présente annonce immobilière a été rédigée sous la responsabilité éditoriale de M Ludovic Seguy mandataire indépendant en immobilier (sans détention de fonds), agent commercial de la SAS I@D France immatriculé au RSAC de Poitiers sous le numéro 843399973, titulaire de la carte de démarchage immobilier pour le compte de la société I@D France SAS.
Source
Logicimmo
Publié le
1 mars 2026
Vue pour la dernière fois
il y a 3 jours