




Pièces
3 pièces
Chambres
2 chambres
Surface
64 m²
Étage
1
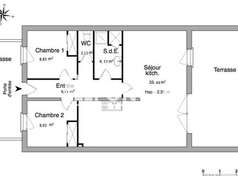
Centre ville, dans une petite résidence, appartement spacieux et lumineux, comprenant une entrée, 2 pièces ajourées avec placard, un séjour spacieux, une cuisine aménagée et équipée, une salle d'eau et un wc. Stationnement facile aux abords de l'immeuble. Assurance Multirisques Privilège *: 16.69 euros / mois *Services facultatifs, voir conditions en agences Les informations sur les risques auxquels ce bien est exposé sont disponibles sur le site Géorisques : georisques. gouv. fr
Source
Logicimmo
Publié le
1 mars 2026
Vue pour la dernière fois
il y a 2 jours