
Pièces
5 pièces
Chambres
4 chambres
Salles de bain
1
Surface
104 m²
Étage
3
Balcon
Oui
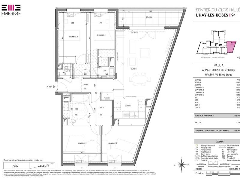
SANS HONORAIRES. RESIDENCE HAYROSES-HALLE - LIVRAISON FIN MARS 2026 Nous avons le plaisir de vous proposer ce T5 de 104 m2 situé dans notre belle résidence 'HAYROSES-HALLE ', comprenant : Une entrée avec placard, une salle d'eau et une salle de bain avec deux WC , un séjour avec cuisine ouverte, 4 chambres et un balcon plus deux parking compris. Charges incluses : eau chaude, eau froide et chauffage collectif. La résidence respectera les nouvelles normes environnementales grâce à l'utilisation de techniques de construction bas carbone et biosourcées et les logements seront raccordés au réseau de chaleur urbain permettant d'atteindre 98% d'énergie renouvelable. La nature sera présente sur les toits avec des toitures végétalisées et des plantations sous serres qui seront accessibles aux résidents. 7, Boulevard Paul Vaillant-Couturier, 94240 L'Hay-les-Roses VISITE SUR LOGEMENT TEMOIN ET CHOIX SUR PLAN. SANS HONORAIRE. Référence à rappeler lors de nos échanges : A896 - 385262 Les informations sur les risques auxquels ce bien est exposé sont disponibles sur le site Géorisques : Logement Locatif Interm.
Source
Logicimmo
Publié le
2 mars 2026
Vue pour la dernière fois
il y a 3 jours