




Pièces
3 pièces
Chambres
2 chambres
Salles de bain
1
Surface
61 m²
Étage
3
Terrasse
Oui
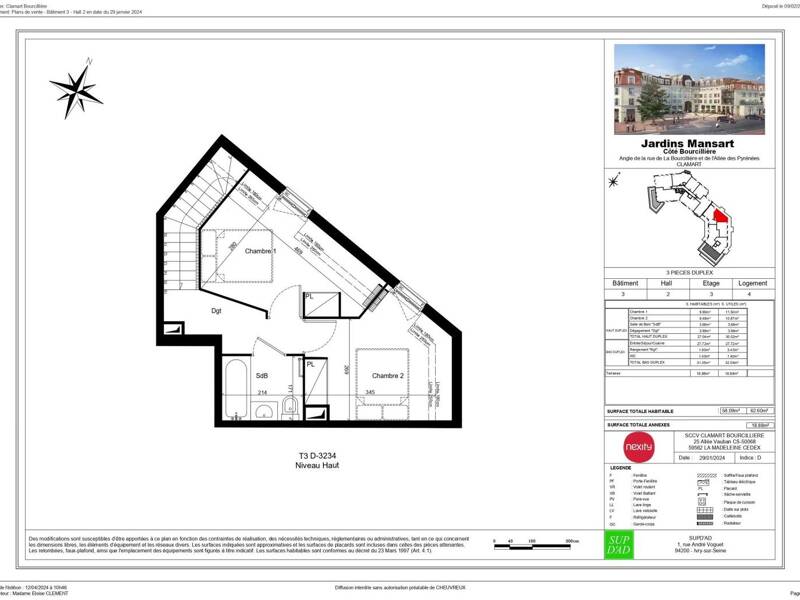
.. T3 en Duplex de 60.70 m2 au 3ème étage avec ascenseur, comprenant au niveau bas, une entrée, un séjour avec une cuisine ouverte de 27.72 m2 donnant sur une grande terrasse et des toilettes ; au niveau haut, 2 chambres de 9.90 et 9.49 m2 disposant de rangements et une salle de bain avec toilettes. Le chauffage est collectif au gaz. Une place de stationnement en intérieur complète ce bien.
Source
Logicimmo
Publié le
2 mars 2026
Vue pour la dernière fois
il y a 1 jour