




Pièces
5 pièces
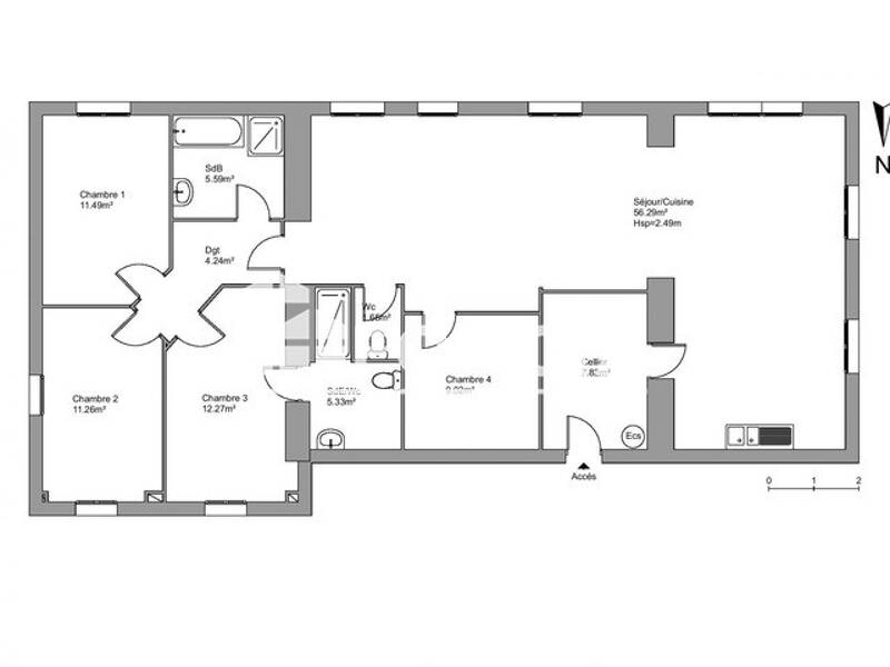
Chambres
3 chambres
Salles de bain
1
Surface
125 m²
Proche du centre ville de TRESSESBelle maison en pierre renové, une entrée, un double séjour avec cuisine ouverte, 3 chambres et un bureau, une salle de bains, une salle d'eau et wc séparé.Grand jardin clôturercontact mme coirier Les informations sur les risques auxquels ce bien est exposé sont disponibles sur le site Géorisques : georisques. gouv. fr
Source
Logicimmo
Publié le
2 mars 2026
Vue pour la dernière fois
il y a 2 jours