
Pièces
3 pièces
Chambres
2 chambres
Salles de bain
1
Surface
67 m²
Terrasse
Oui
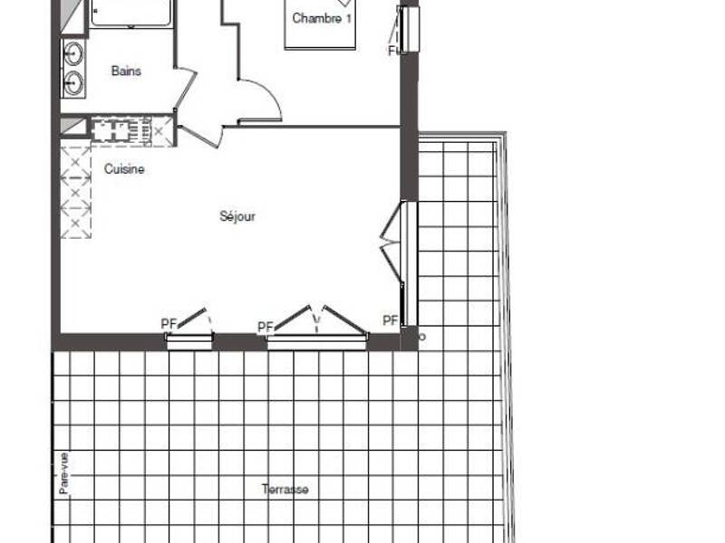
Rue Camille Pelletan à CENON. A proximité immédiate de tram A La Morlette, des bus et des commerces. Dans une résidence neuve, un appartement d'environ 66 m² comprenant une entrée, une pièce de vie, une cuisine ouverte aménagée et équipée, deux chambres, un cellier, une salle de bains et d'un wc indépendant. Le chauffage et l'eau chaude sont inclus dans les charges. L'appartement dispose d'une terrasse et d'une place de stationnement. Disponible dès le 4 mars 2026.
Source
Logicimmo
Publié le
2 mars 2026
Vue pour la dernière fois
il y a 7 heures