




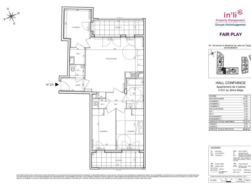
Pièces
4 pièces
Chambres
3 chambres
Salles de bain
1
Surface
79 m²
Étage
3
Balcon
Oui
..Sans frais d'agence, direct bailleur In'li. Votre prochaine adresse vous attend à Bondy ! Livrée le 28/11/2025, votre résidence neuve se situe au 34 / 36 avenue du Maréchal de Lattre de Tassigny, à 2 pas du centre-ville et de toutes ses commodités. Vous bénéficierez également de la proximité des transports (Tram T1 Pont de Bondy et RER E Bondy à quelques minutes à pied, arrivée du T Zen 3 prévue en 2028).Conformément à l'indice de référence des loyers (IRL), le loyer hors charges affiché sera révisé de 1,04 % à compter du 1er janvier 2026. A louer, GRAND Appartement de 79,30m2 au 1er étage qui se compose d'une entrée avec rangement , un séjour de 30,00m2 avec cuisine ouverte donnant accès à un premier loggia de 8,00m2 exposé nord-ouest. 3 chambres 11,80m2, 10,20m2 et 9,50m2 donnant accès à un deuxième loggia de 8,10m2 exposé est. Une salle de bain et WC séparé. Chauffage collectif au gaz.Une place de stationnement. NB : photos des logements non contractuelles, en illustration des prestations types.Réservation sur plan uniquement SANS VISITES.DISPONIBLE DE SUITE
Source
Logicimmo
Publié le
2 mars 2026
Vue pour la dernière fois
il y a 1 jour