



Pièces
2 pièces
Chambres
1 chambre
Surface
41 m²
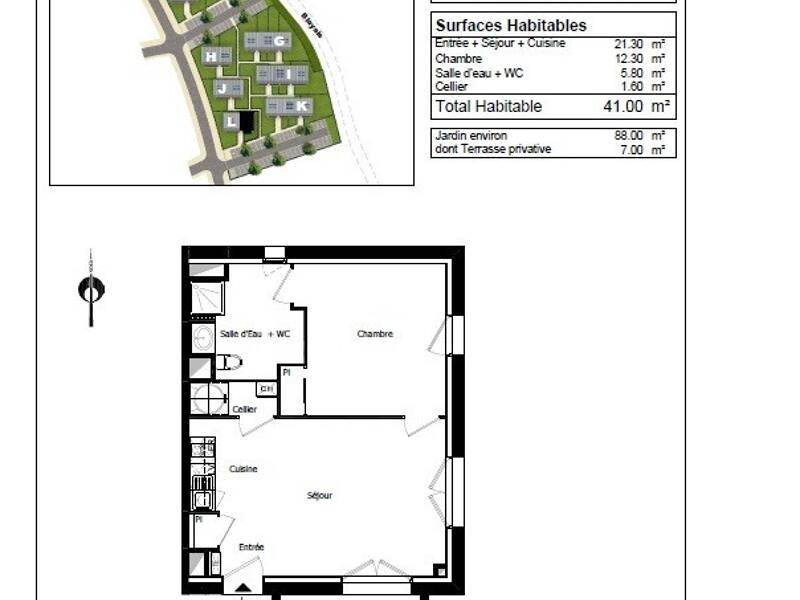
SAINT-JEAN D'ILLAC - Dans résidence proche du centre et de toutes les commodités. Un appartement de type 2 en RDC composée d'une entrée, un séjour, cuisine américaine, une chambre avec placard, salle d eau, wc. Jardinet privatif de 88m² environ avec terrasse, parking. Chaudière gaz à condensation pour eau sanitaire et chauffage. Norme BBC. Nouveau DPE Estimation des coûts annuels d¿énergie du logement Les coûts sont estimés en fonction des caractéristiques de votre logement et pour une utilisation standard sur 5 usages (chauffage, eau chaude sanitaire, climatisation, éclairage, auxiliaires) voir p.3 pour voir les détails par poste. entre 420 € et 620 € par an Les informations sur les risques auxquels ce bien est exposé sont disponibles sur le site Géorisques : georisques. gouv. fr
Source
Logicimmo
Publié le
3 mars 2026
Vue pour la dernière fois
il y a 1 heure