



Pièces
2 pièces
Chambres
1 chambre
Salles de bain
1
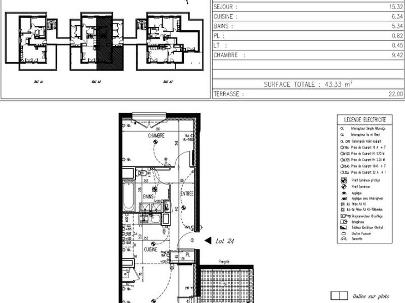
Surface
43 m²
Étage
3
Terrasse
Oui
SENNECEY LES DIJON, à proximité de la ligne de bus B16, des écoles primaires et maternelles, résidence 'Le Domaine de la Source', appartement deux pièces situé 3ème étage (sans ascenseur) comprenant : une entrée avec placard, un séjour avec espace cuisine et terrasse de 22 m², une chambre, une salle de bains.L'eau froide est non incluse dans les charges une souscription d'un contrat individuel auprès d'Odivéa sera requise.La production de chauffage et d'eau chaude est individuelle au gaz. Ce logement dispose également d'un cellier ainsi qu'une place de parking privative en sous-sol.Disponible début avril 2026.Remplissez le formulaire de contacts depuis cette annonce pour vous permettre de déposer un dossier de candidature en ligne ou d'être recontacté.
Source
Logicimmo
Publié le
4 mars 2026
Vue pour la dernière fois
il y a 18 heures