




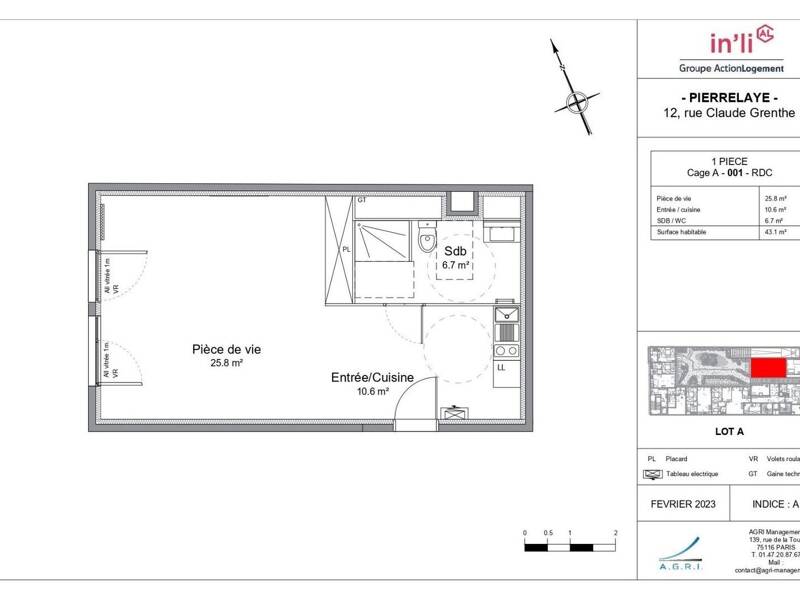
Pièces
1 pièce
Salles de bain
1
Surface
43 m²
..Studio de 43,10m2 situé au rdc comprend une cuisine semi-ouverte de 10,60m2, une pièce de vie de 25,80m2 exposée Ouest.Une salle de bain avec douche de 6,70m2 avec WC. Chauffage collectif compris.Une place de stationnement est comprise dans le loyer. Photos non contractuelles.
Source
Logicimmo
Publié le
4 mars 2026
Vue pour la dernière fois
il y a 15 heures