




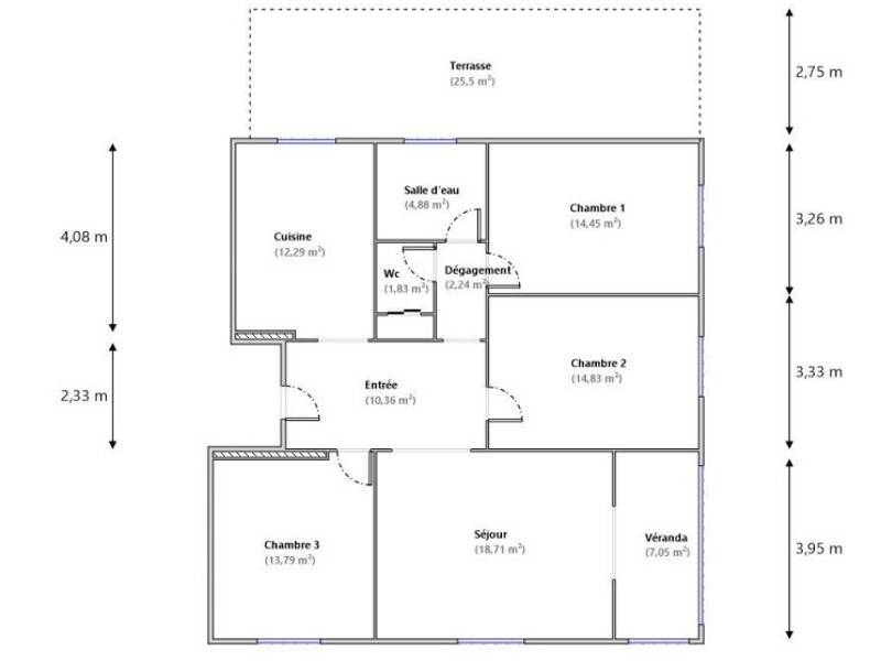
Pièces
4 pièces
Chambres
3 chambres
Surface
93 m²
Étage
1
Terrasse
Oui
POINTE de CONTES : Atypique Appartement/Villa au 1er et dernier étage d'une maison, 4 pièces (93m²) + Terrasses et Jardins en planches, entièrement repeint en blanc, Séjour 18m² + Loggia 7m², cheminée, Vue Dégagée, 3 chambres au CALME, spacieuse cuisine indépendante 12m² aménagée neuve, double vitrage, climatisation réversible dans toutes les pièces, salle de douche, wc séparés, GARAGE et CAVE, facilité pour stationner un 2e véhicule, idéal pour une famille souhaitant profitez du calme et des exterieurs, ce bien ravira les bricoleurs et les amoureux du jardinage, Loyer 1.500€ + 125€ Charges (Eau Froide, Ordures Ménagères et entretien climatisations), Dépôt de Garantie 1.500€, LOCATION VIDE actuellement disponible, Gestion Locative sous Garantie des Loyers, Revenus Titulaires du Bail Supérieurs à 4.925€ CDI Nets Mensuels période d'essai purgée (Acte de caution solidaire non accepté), Classe Energie C, (estimation des coûts annuels d'énergie du logement entre 1.230€ et 1.730€ par an, prix moyens des énergies indexés sur les années 2021/22/23 abonnements compris). Honoraires Location et Etat des Lieux règlementés à la charge des locataires 13.12€/m² soit 1.225€ TTC, Exclusivité MIDEM Immobilier, Montez un dossier de candidat locataire en béton pour trouver le logement de vos rêves (DossierFacile vous aide à constituer un dossier de location numérique de qualité pour mettre toutes les chances de votre côté) ou privilégiez un contact par email en nous adressant : Pièce Identité, Attestation Employeur CDI, 3 derniers bulletins salaire, avis imposition sur
Source
Logicimmo
Publié le
4 mars 2026
Vue pour la dernière fois
il y a 3 jours