




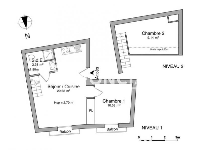
Pièces
3 pièces
Chambres
2 chambres
Surface
43 m²
Étage
2
Village à quelques minutes de pézenas, dans un immeuble entièrement rénové, appartement neuf bien agencé, avec cuisine équipée ouverte sur séjour, 2 chambres, salle d'eau avec wc.Disponible de suite. Les informations sur les risques auxquels ce bien est exposé sont disponibles sur le site Géorisques : georisques. gouv. fr
Source
Logicimmo
Publié le
11 mars 2026
Vue pour la dernière fois
le 13/03/2026